145㎡ 橫廳-時代順城 | 沉浸在奶油風的溫柔里…

極簡奶油風,為您帶來恬淡的美好。

在忙碌的生活中,我們常常追求繁瑣的事物,忽略了生活的簡單之美。而柔柔的奶油風,是那么誘人心醉。奶油般裝修,就是把本來就漂亮的空間再涂上一層溫柔的色彩。粉色、黃色、米白等柔和色調為你的室內增加了一份婉約和柔美,帶著一絲像蛋糕般的浪漫風情。

入戶設計

145㎡ 橫廳-時代順城 | 沉浸在奶油風的溫柔里…

145㎡ 橫廳-時代順城 | 沉浸在奶油風的溫柔里…

☆鞋柜設計小tips
①柜子底部懸空設計,顯得整個柜體更加輕盈,同時方便日常出門換鞋和打掃衛生。
②開放式掛衣區鏤空設計,底部預留一個換鞋凳,坐著換鞋更方便,鞋凳下面做一個抽屜放襪子,再也不用出門前還跑到臥室去拿襪子了。

③局部留空做置物架,可以隨時放包包、鑰匙等小物件,柜門盡量選擇無拉手設計,實用又清爽!

客廳設計

145㎡ 橫廳-時代順城 | 沉浸在奶油風的溫柔里…

145㎡ 橫廳-時代順城 | 沉浸在奶油風的溫柔里…

145㎡ 橫廳-時代順城 | 沉浸在奶油風的溫柔里…

145㎡ 橫廳-時代順城 | 沉浸在奶油風的溫柔里…

145㎡ 橫廳-時代順城 | 沉浸在奶油風的溫柔里…

145㎡ 橫廳-時代順城 | 沉浸在奶油風的溫柔里…

全屋選擇浪漫的奶白色為主色調,搭配原木風,營造空間呼吸感,客餐廳一體設計,通鋪柔光磚,裸調的高級質感滿滿。

通過大落地玻璃和夢幻簾充分利用自然光線的效果。此外,柔和且溫暖的照明也是奶油風的特點,如柔和的燈光以及暖色調墻板,再搭配布藝制品,基本都有軟軟的絨毛,觸感舒適,休閑感十足~

廚房設計

145㎡ 橫廳-時代順城 | 沉浸在奶油風的溫柔里…

145㎡ 橫廳-時代順城 | 沉浸在奶油風的溫柔里…

一字型布局,在一面墻上設置櫥柜,水槽、灶具和儲物,所有操作都在一條直線上完成,節省空間。管線短、經濟,便于施工和水平管道的隱蔽。櫥柜和吊頂承載了廚房里多數的收納需求。櫥柜空間夠大,才方便收納。

臥室設計

145㎡ 橫廳-時代順城 | 沉浸在奶油風的溫柔里…

145㎡ 橫廳-時代順城 | 沉浸在奶油風的溫柔里…

145㎡ 橫廳-時代順城 | 沉浸在奶油風的溫柔里…

臥室以暖色調為主,背景墻是簡單的乳膠漆﹢木飾面,沒有太多繁瑣的設計,卻很耐看,當然一個漂亮的衣柜也是臥室裝修中必不可少的元素,一門到頂的衣柜讓空間整體觀感盡顯大氣。

衛生間干濕分離,色彩搭配上和整體一致,懸掛式馬桶,安裝位置不占空間,也更方便打掃。

145㎡ 橫廳-時代順城 | 沉浸在奶油風的溫柔里…

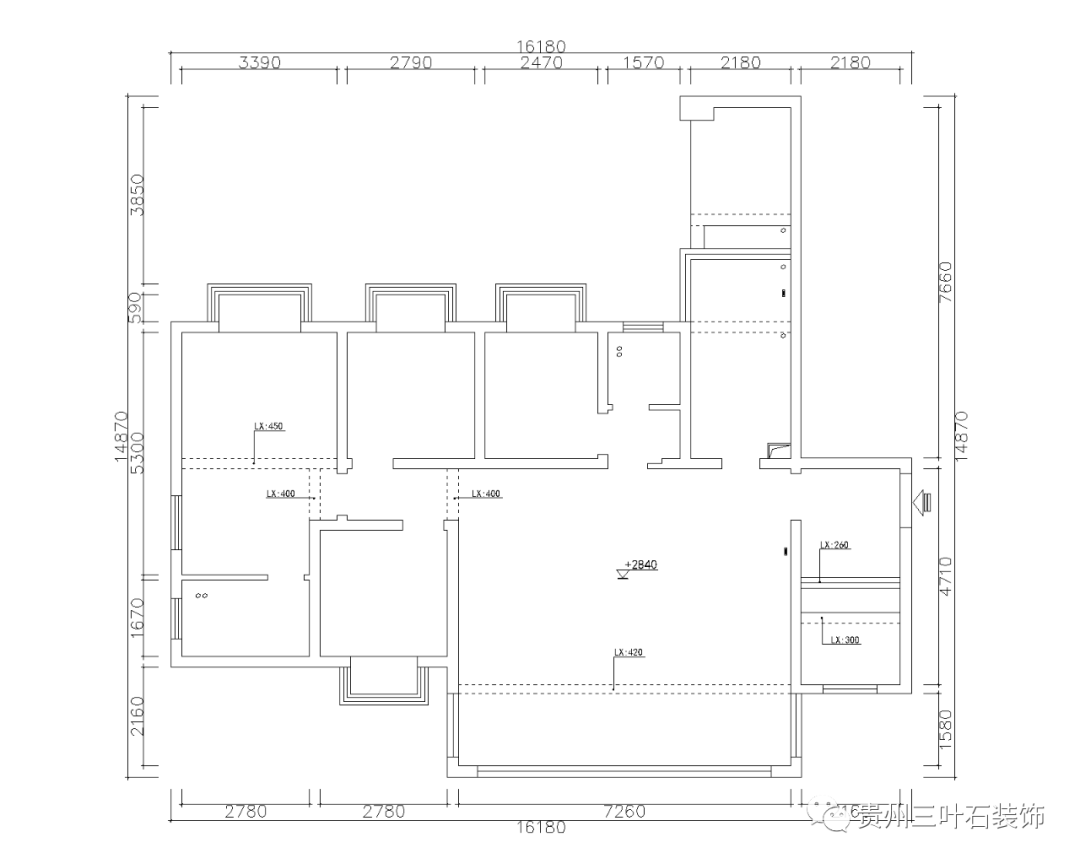
原始結構圖

145㎡ 橫廳-時代順城 | 沉浸在奶油風的溫柔里…

平面方案圖

145㎡ 橫廳-時代順城 | 沉浸在奶油風的溫柔里…

145㎡ 橫廳-時代順城 | 沉浸在奶油風的溫柔里…